どーも。本日も弊所のウェブサイトにおこしやす。
スナックやバーなどの深夜営業許可(届出)等の風営法に特化したスキンヘッドの行政書士です。
ちなみに、何で毎回、挨拶の時にスキンヘッドだと名乗っているかわかりますか?
それは、お会いしたときに弄っていいのか、お客さんが困惑しそうなので先手を打ってさらけ出しております。
なので、お気軽に「ハゲ先生」「おしょー」と呼んでいただいて構いません。
さて、スナックやバーを開業されるオーナー様から、内装設計の段階で必ずご質問いただくのが、「ボックス席や間仕切りをどこまで設置して良いのか?」「シャンデリアなどの装飾品に決まりはあるのか?」といった店舗の構造に関する問題です。
深夜営業許可は、手続き上は届出にはなりますが、店舗の構造が風営法上の要件を満たしていないと、届出は受理されません。構造要件への認識が曖昧なまま内装工事を進めてしまい、「やり直し」になるケースが少なくありませんので注意しましょう。
この記事では、深夜営業許可を取得するために、「客室」や「間仕切り」について具体的にどこまでがOKで、どこからがNGなのかを、図面作成の視点も交えて分かりやすく解説します。

知らなかったでは済まない/構造要件の不備
深夜酒類提供飲食店営業開始届出(深夜営業許可)において、最も時間と費用を浪費しやすいのが、構造要件の不備となります。
これは、深夜営業の届出で構造要件が規制されているのは、風営法の目的にあります。
『善良の風俗と清浄な風俗環境を保持し、少年の健全な育成を阻害する行為を防止する』
夜間は人通りも少なく、理性が緩みやすい時間帯だと言われています。
そんな時間帯に理性を吹っ飛ばすお酒を飲むお店で、薄暗く店員さんの目も届かないような席が存在するとどうなるでしょう?
暗く誰も見てないのもいいことに、過剰な接待や売春、違法薬物などの売買などの犯罪行為の温床になってしまう可能性がありますよね。
風営法の目的である『善良の風俗と清浄な風俗環境を保持』する為には、法律で店舗内の客室の見通しなどを確保できるよう規制する必要があるということです。
内装工事に入る前に、必ず「客室」に関する以下の要件を確認しましょう。

バーやスナックの「ボックス席・間仕切り」に関する判断基準
深夜営業許可(深夜酒類提供飲食店営業の届出)の構造要件の重要なポイントは、客室の「見通しの確保」になります。
では、ボックス席や間仕切りはどういった扱いになるのでしょうか?
1. ボックス席の設置は「OK」だが『接待』に要注意!
お客さんが複数人で座ることができるボックス席ですが、設置自体は問題ありません。ただし、深夜に使用する場合には以下の点に注意が必要です。
| ポイント | OK | NG |
| 座席の区切り | 背もたれやパーティションが人の目線の高さ(約1m)より低いもの。 | ボックス席が1m以上の壁や衝立で完全に囲まれ、客席全体が見通せない構造。 |
| 誰が座るか | お客さんが複数人のグループで座りお酒や談笑を楽しむ | お客さんと従業員が座り、談笑やお酌などの接待行為を行う |
【行政書士の解説】
◇カウンター ◇テーブル ◇椅子 ◇間仕切り ◇腰壁 ◇観葉植物などの装飾品
《接待行為の具体例》◇過度なスキンシップ ◇長時間の談笑 ◇カラオケのデュエット ◇手拍子 ◇合いの手
◇一緒にゲームなどの遊戯 ◇お酌 ◇お口にあーん
シャンデリアや垂れ壁・モニターなどの設備も見通しを妨げる?
先ほどまで説明していた「見通し」というのは、床から1m以上の設備について解説しましたね。
鋭い人であれば、下記の様に気になった人もいると思います。
では、逆に上は?天井から垂れ下がってるものはいいの?
結論から言いましょう。ダメです。
上からだろうが下からだろうが客室内で死角を作ってしまうような設備はNGです。
以前、公安委員会に確認したところ床から1.7m離れてないと見通しを妨げてしまうとの判定でした。
この見通しについては、管轄によっても判断が分かれてきますので、気になる部分は写真と図面を持って事前に相談しましょう。

深夜営業許可に必須の「客室の照度(明るさ)」要件
構造要件と並んで、引っ掛かりやすいのが照度(明るさ)の規制です。
上記の画像の様にロウソクだけで営業するとかいうコンセプトはNGとなっとります。
- 規制基準:
- 客室の照度が、20ルクス(lx)以下になってはいけない。
- ルクスの感覚:
- 20ルクスとは、「10m先の人の顔や行動が認識できる程度の明るさ」が目安です。休憩中の映画館くらいという表現がよく使用されますが、分かりますか?あまり映画館行かないのでピンとこないんですよね。
- 実務上の対策:
- スライダックス照明(調光器)はNGです。明るさを調整できてしまうとなんの意味もないので、スライダックスがついている場合は、ボタンのONOFFに変えておきましょう。
- 20ルクス以上の照度が必要なのは客室全体です。一部分だけ極端に暗いのもダメですので気を付けましょう。

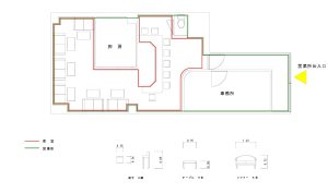
図面作成の注意点:平面図/求積/音響/照明
これらの構造要件を満たしたことを警察に示すためには、正確な図面を作成し、届出時に提出しなければなりません。
| 提出が必要な図面 | 構造要件の明記ポイント |
| 客室の求積図 | 客室の面積を正確に計算し、図面上に記載する。 |
| 客室の平面図 | テーブルや椅子のサイズや個数・配置を正確に記載する。 |
| 照明・音響設備図 | 照明器具の位置やカラオケ・音響設備などの位置を正確に記載する。 |
【行政書士の解説】
あくまで、原則です。
管轄の警察署によっては現地調査を必ず行う警察署もあります。
来ないからと思って、適当に図面を作成すると不備ばかりで非常に心証が悪くなるので注意しましょう。どこからどう図ってその数字になったのか聞かれることも多いので、図面作成者は必ず調査の時に同行するようにしてください。

図面作成に困ったらご相談ください
風営法に関わる許認可で行政書士が重宝される理由の大部分が図面作成です。
あなたの理想のお店の内装や構造が、深夜酒類提供飲食店営業の構造要件に合っているのか、もしくはどうすれば合わせれるのか?
少しでも悩んでいるのであれば、ぜひ私たちにお任せください。
📩 【初回無料相談】で内装設計段階からのご相談もOK
【時間がない】【不安】【プロに任せたい】【めんどくさい】
上記のような場合は、ぜひ弊所にご相談ください。
アドバイスから手続きの代行まで、トータルで全力サポートさせていただきます。

LINE:相談無料↓↓↓↓

関西で開業準備に迷ったら、まず私たちにご相談ください!
飲食店営業許可も併せて承ります。
「この物件で本当に大丈夫かな?」「どんな書類がいるの?」
どんな小さな疑問でも構いません。まずは無料相談をご利用ください。
圧倒的な安さと、確かな知識で、あなたの開業を力強くバックアップします。
【深夜酒類提供飲食店営業に関する記事のご案内】

